Opis nieruchomości
Działka za dużym potencjałem, położona na osiedlu domów jednorodzinnych i wielorodzinnych w Kowarach
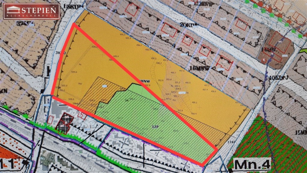
Przeznaczenie terenu w Miejscowym Planie Zagospodarowania Przestrzennego:
6MNW ( ok 3976m2)
Podstawowe: zabudowa mieszkaniowa jedno i wielorodzinna
Uzupełniające: usługi i infrastruktura techniczna
-dopuszczalna zabudowa małymi domami mieszkalnymi, zawierającymi do czterech lokali mieszkalnych na działce.
-dopuszczalne zamieszkiwanie zbiorowe, pensjonaty
-obiekty gospodarczo-garażowe wbudowane lub dobudowane do budynku.
-usługi zajmujące do 30% powierzchni użytkowej budynku.
- powierzchnia zabudowy budynku od 120 do 250m2
- wyskość nowej zabudowy od 8 do 12m
- liczba nadziemnych kondygnacji zabudowy mieszkaniowej, od 2 do3
- wskaznik zabudowy nie większy niż 0.8
-powierzchnia biologiczno czynna nie mniejsza niż 40%
1.ZP (ok 4635m2)
Przeznaczenie podstawowe:
- tereny zieleni urządzonej z zagospodarowaniem o charakterze wypoczynkowym i rekreacyjnym.
Przeznaczenia uzupełniające:
- infrastruktura techniczna
- parkingi
- ciągi piesze i pieszo – rowerowe
-wody powierzchniowe śródlądowe.
Nota prawna
Opis oferty zawarty na stronie internetowej sporządzany jest na podstawie oględzin nieruchomości oraz informacji uzyskanych od właściciela, może podlegać aktualizacji i nie stanowi oferty określonej w art. 66 i następnych K.C.
UWAGA ważna informacja -
Szanowni Klienci, przed zaprezentowaniem Państwu nieruchomości zostaniecie Państwo poproszeni o podpisanie umowy pośrednictwa. Umowa ta – w przypadku WIĘCEJ
Szczegóły




