X

Popielówek

Dom na sprzedaż

4 pokoje 159,20 m2 1 375,63 zł/m2

219 000 zł

oferta na wyłączność
Małgorzata Kuras

Ekspert ds. Sprzedaży Nieruchomości

Mostowa 6, 58-500 Jelenia Góra

ABN STĘPIEŃ NIERUCHOMOŚCI

Opis nieruchomości

Malowniczo położony dom na Pogórzu Izerskim
 
Lokalizacja:
Cicha i spokojna okolica, w pobliżu malowniczego strumienia oraz otaczającej zieleni.
Brak sąsiadów jak również ograniczona możliwość dalszej zabudowy!!!!

Dostępność komunikacyjna:
Dobra infrastruktura komunikacyjna zapewnia wygodny dojazd do pobliskich miejscowości i większych miast.
Dogodny dostęp do:
*Gryfowa Śląskiego - ok.13 km
*Jeleniej Góry - ok. 20 km,
*Świeradowa Zdrój - ok. 23 km
*Szklarskiej Poręby - ok. 28 km,
*Karpacza - ok. 35 km.

Powierzchnia użytkowa budynku: 120 m²
Powierzchnia działki: 768 m²

Opis nieruchomości:
Przedstawiamy Państwu wyjątkową ofertę sprzedaży domu, który znajduje się w pięknej, spokojnej okolicy miejscowości Popielówek. To idealna propozycja dla osób ceniących ciszę, spokój oraz bliskość natury.
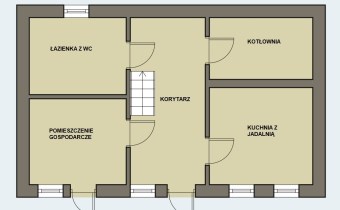
Rozkład pomieszczeń:
  • 4 pokoje – przestronne i pełne możliwości aranżacyjnych, idealne na sypialnie lub gabinety
  • Kuchnia – do własnej aranżacji, z potencjałem na stworzenie serca domu
  • Łazienka – do remontu, co daje szansę na dostosowanie do własnych potrzeb
  • Kotłownia – zapewniająca wygodę i funkcjonalność
  • 2 przedpokoje – przestronne, mogą pełnić funkcję galerii
  • Pomieszczenie gospodarcze – dodatkowa przestrzeń na przechowywanie lub jako miejsce do pracy
Stan nieruchomości:
Dom wymaga remontu, co stwarza doskonałą okazję do zrealizowania własnych pomysłów i wizji.
Możliwość dostosowania wnętrza według indywidualnego gustu.
Nieruchomość uzbrojona jest we wszystkie media, niezbędne do użytkowania. 

Otoczenie:
Nieruchomość położona jest na działce o powierzchni 768 m². Wokół panuje zieleń, a bliskość strumienia tworzy wyjątkową atmosferę relaksu i odpoczynku. To idealne miejsce dla rodzin i osób szukających azylu wśród natury.

Zapraszamy do kontaktu w celu umówienia się na prezentację oraz uzyskania dodatkowych informacji.

To doskonała okazja, aby stworzyć wymarzone miejsce do życia w sercu natury!

Nota prawna

Opis oferty zawarty na stronie internetowej sporządzany jest na podstawie oględzin nieruchomości oraz informacji uzyskanych od właściciela, może podlegać aktualizacji i nie stanowi oferty określonej w art. 66 i następnych K.C.

 

UWAGA ważna informacja

Szanowni Klienci, przed zaprezentowaniem Państwu nieruchomości zostaniecie Państwo poproszeni o podpisanie umowy pośrednictwa. Umowa ta – w przypadku WIĘCEJ

Szczegóły

Symbol oferty DS-28350
Powierzchnia 159,20 m²
Powierzchnia użytkowa 139,20 m²
Powierzchnia działki 768 m²
Liczba pokoi 4
Rodzaj domu wolnostojący
Technologia budowlana mieszany
Standard
Liczba pięter w budynku 1
Garaż w budynku
Stan prawny Wlasnosc
Okna PCV
Zagosp. działki częściowo zagospodarowana
Ukształtowanie działki częściowo stroma
Kształt działki nieregularny
Pokrycie dachu dachówka
Stan budynku do remontu
Ogrodzenie działki drewniane
Rok budowy 1935
Woda tak - własna
Dojazd droga utwardzona
Otoczenie niezabudowane
Ogrzewanie CO
Prąd tak
Kanalizacja szambo

Pomieszczenia

Rodzaj kuchni aneks kuchenny - połączony z jadalnią
Typ łazienki razem z wc
Liczba łazienek 1
Liczba przedpokoi 2
PLN
PLN
PLN
PLN
PLN
PLN
PLN
%
PLN
PLN
PLN

PLN

Dane:

PLN
%

Wynik:

PLN
pierwsza rata
ostatnia rata

Napisz do nas

Proszę wypełnić to pole
Proszę wypełnić to pole
Proszę wypełnić to pole
Proszę wypełnić to pole
Trwa wysyłanie...
 Zadzwoń
 Wiadomość

Ta strona wykorzystuje pliki cookies w celach statystycznych oraz w celu dostosowania naszych serwisów do indywidualnych potrzeb klientów. Zmiany ustawień dotyczących plików cookie można dokonać w dowolnej chwili modyfikując ustawienia przeglądarki. Korzystanie z tej strony bez zmian ustawień dotyczących cookies oznacza, że będą one zapisane w pamięci urządzenia.

rozumiem