Opis nieruchomości
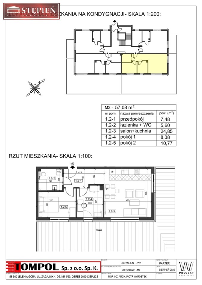
Apartament nr 2 w budynku W-2
położony na parterze, od strony południowo - wschodniej
powierzchnia 57,08 m2
W skład apartamentu wchodzi: salon z kuchnią, przedpokój, łazienka , dwa pokoje
Do lokalu przynależy taras z którego rozpościera się widok na panoramę Karkonoszy
Wykończenie lokalu STAN DEWELOPERSKI
MOŻLIWOŚĆ DOKUPIENIA MIEJSCA PARKINGOWEGO W HALI GARAŻOWEJ
Osiedle Zielone Tarasy IV Zagajnik to najnowsza inwestycja w Jeleniej Górze – Cieplicach.
Na prawie dwuhektarowej działce ze starodrzewem i wspaniałym widokiem na pasmo górskie powstanie siedem budynków wielorodzinnych z pełną infrastrukturą.
Osiedle dedykowane dla osób ceniących najwyższe standardy.
Nowoczesne rozwiązania techniczne, najwyższej jakości materiały wykończeniowe.
Nowoczesna architektura budynków idealnie pasująca do otoczenia. Bardzo praktyczne rozkłady mieszkań i najlepsze materiały budowlane a całość wykonywana przez profesjonalnych, wykwalifikowanych fachowców budowlanych których hasłem przewodnim jest "Wielkopolska jakość"
Dla komfortu mieszkańców wszystkie mieszkania zostaną wykończone w różnych standardach
Osiedle ZIELONE TARASY IV ZAGAJNIK zostało zlokalizowane w uzdrowiskowej części Jeleniej Góry – Cieplicach Śląskich Zdroju przy ul. Zagajnik.
Idealna lokalizacja dla osób ceniących jakość wykonania, dogodny dostęp, niepowtarzalne widoki, naturę, ciszę i spokój.
Pod kątem jakości, lokalizacji i widoków, niewątpliwie najlepsze miejsce w Karkonoszach.
Z osiedla rozprzestrzenia się widok na całą panoramę Karkonoszy
Dojazd drogą asfaltową
Ok 1,5 km do Placu Piastowskiego
Ok 1km do Term Cieplickich
Ok 1km do Parku Norweskiego i Zdrojowego
Ok 0,6 km od komunikacji publicznej i sklepów
Kilkanaście km do Karpacza, Szklarskiej Poręby, Świeradowa Zdroju czy Harachova.
www.zielonetarasy-cieplice.pl
Nota prawna
Opis oferty zawarty na stronie internetowej sporządzany jest na podstawie oględzin nieruchomości oraz informacji uzyskanych od właściciela, może podlegać aktualizacji i nie stanowi oferty określonej w art. 66 i następnych K.C.
UWAGA ważna informacja -
Szanowni Klienci, przed zaprezentowaniem Państwu nieruchomości zostaniecie Państwo poproszeni o podpisanie umowy pośrednictwa. Umowa ta – w przypadku WIĘCEJ
Szczegóły




